Pihatuurin piharakennustehtaalla valmistettavat pihavajat, hirsitalot, katokset, paviljongit, saunat, kesämökit, grillikodat ja puiset autotallit toimitetaan täydellisinä ovineen, ikkunoineen, kiinnitystarvikkeineen ja asennusohjeineen, joten rakentaminen on helppoa ja aikaa säästävää.
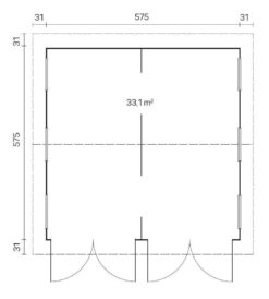
Autotallipakettiin, jonka seinäpaksuus on 70 mm, sisältyy mallin mukaan:
Puumateriaalina on käytetty 100 % pohjoismaista laatukuusta
Erikoisliimapuusta valmistetut (8–12 %) ovet ja ikkunat.
Kiinteät lasi-ikkunat, sisältää helat
Kaksi lautaverhoiltua autotallin ovea, sisältää helat
Katto valmistettu 18 mm paksusta ponttilaudasta
Kyllästetyt perustuspuut
Myrskysuojat
Kiinnitystyökalut (naulat ja ruuvit)
Asennusohjeet
Hinnat ovat voimassa Pihatuurin tehtaan varastossa ja sisältävät arvonlisäveron.
Hinnat eivät sisällä kuljetusta.













