Pihatuurin piha- ja puutalotehtaalla valmistettavat pihavajat, hirsitalot, katokset, paviljongit, saunat, kesämökit, grillikodat ja puiset autotallit toimitetaan täydellisinä ovineen, ikkunoineen, kiinnitystarvikkeineen ja asennusohjeineen, joten pihamökin rakentaminen on helppoa ja aikaa säästävää.
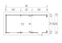
Autotallipakettiin, jonka seinäpaksuus on 70 mm, sisältyy mallin mukaan:
- Puumateriaalina on käytetty 100 % pohjoismaista laatukuusta
- Erikoisliimapuusta valmistetut (8–12 %) ovet ja ikkunat.
- Kaksoislasitetut ikkunat (molemmat avattavia), sisältää helat
- Lasiruudullinen ovi, sisältää helat
- Katto valmistettu 18 mm paksusta ponttilaudasta
- Kyllästetyt perustuspuut
- Myrskysuojat
- Kiinnitystyökalut (naulat ja ruuvit)
- Asennusohjeet
Hinnat ovat voimassa Pihatuurin tehtaan varastossa ja sisältävät arvonlisäveron.
Hinnat eivät sisällä kuljetusta.









