Hirsimökki Madeira, ovi ja ikkunat kaksinkertaisilla laseilla

Alkuperäinen hinta oli: 13 570,00 €.Nykyinen hinta on: 12 330,00 €.

Rahti Manner-Suomeen: 390€

Hintaan sisältyy liimapuukarmiset kaksiosaiset lasi-ikkunat, ruostumattomasta teräksestä valmistettu kynnyspaketti, lattia, kyllästetyt perustuspuut, kiinnitystarvikkeet ja asennusohjeet. Hinta ei sisällä kuljetusta ja katemateriaalia.

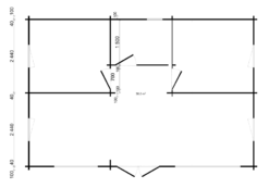
Ulkomitat: 780 x 520 cm
Hirsivahvuus: 40 mm
Tuotteen perushinta
Lisävalintojen hinta
Yhteensä
Tuotetunnus (SKU): 122_112 Osastot: , ,